【平屋|魚津市本新モデル】南向きLDKと囲い庭。穏やかに暮らす、3LDK平屋の住まい
2026年5月末完成予定
南向きリビングに、陽の光がゆっくり広がる。
キッチンに立つと囲い庭の緑が見えて、風がすっと抜けていく。
そんな穏やかな時間が日常になる
28坪3LDK「ナチュラルモダンな平屋」が、魚津市本新に誕生します。
高気密・高断熱・外断熱のノウハウとセキホームの美意識が宿る、
機能的で快適な住まいをぜひご覧ください。
コンセプト
自然と利便性が両立する、魚津ならではの暮らし
魚津市本新モデルの周辺には、「魚津漁港」や「海の駅 蜃気楼」、
ランニングやロードバイク、海釣りが楽しめる「しんきろうロード」があり、
自然を身近に感じながら、アクティブな暮らしを楽しめます。
晴れた日には、富山湾の水平線と立山連峰を望む、魚津ならではの景色も魅力です。
そんな環境にありながら、魚津駅・新魚津駅へは徒歩約5分。
通勤・通学もスムーズで、朝の時間にもゆとりが生まれます。
車で約7分の魚津バイパスを使えば、通勤やお出かけも快適。
周辺にはスーパーや医療機関、保育園・小中学校も揃い、
自然と暮らしの利便性のバランスが取れた住環境です。
山と海の自然に囲まれながら、駅や医療、商業施設も身近にある。
週末の楽しみと、日常の便利さ。
そのどちらも叶う街です。
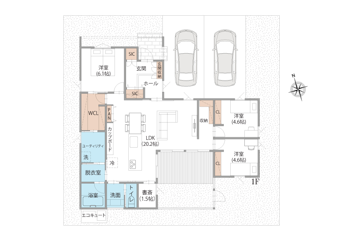
“あったらいいな”が全部ある。平屋で叶える、家族のための設備と動線
毎日の家事も、家族の時間も、もっとスムーズに、もっと心地よく。
この住まいは、平屋ならではの暮らしやすさを大切にしながら、
セキホームの注文住宅と同じ考え方で、設備と動線を計画しました。
玄関はポケットキー対応。
荷物を持っている時や子どもを抱っこしている時も、
ボタンひとつで出入りできる快適さを備えました。
屋根付きの玄関ポーチが雨雪の日も安心です。
LDKを中心に、水回りや収納へとつながる回遊動線は、
ワンフロアで完結する平屋だからこそ、家族の動きに自然とフィットします。
キッチンには、深型食洗機やIH3口コンロ、
タッチレス水栓、ユーティリティ横のファミクロ(WCL)など、
毎日の家事・移動の負担を減らす設備・動線を備えました。
浴室は1坪サイズのシステムバス、トイレは「アラウーノ」を標準装備。
オール電化+省エネ給湯器で、光熱費にも配慮しています。
家族の動きにフィットする平屋の動線と快適な設備がそろった住まい。
「こんな暮らしがしたかった」が、ここで叶います。
建売の常識を超える、注文住宅仕様の高性能な住まい
この住まいは、建売(分譲住宅)でありながら、
注文住宅と同じ仕様・同じ品質で、丁寧に仕上げられています。
構造は「木造軸組モノコック工法」に制振ダンパーを採用。
構造部にはすべて集成材を使用し、強度と耐久性を確保。
長く安心して住み続けられる、
頑丈な骨組みと免震・制震・耐震に優れた住まいです。
断熱には、セキホーム標準の外断熱工法を採用。
柱の外側から断熱材「サーマックス」で家全体を包み込むことで、
夏は涼しく、冬は暖かい快適な室内環境を実現しています。
断熱等級6クリア(UA値0.46以下)という高性能も、見えない部分へのこだわりの証です。
外壁・屋根には、メンテナンス性と耐久性に優れたガルバリウム鋼板を採用。
さらに、吹き付け仕上げをアクセントに採用することで意匠性をプラス。
見た目の美しさと、住んでからの安心感を両立しています。
見えない部分まで丁寧に、誠実に仕上げたオンリーワンの住まいです。
南向きリビングからはじまる、心地よい毎日
南向きリビングに、やわらかな陽光が差し込み、
木の質感とともに穏やかな時間をつくり出します。
リビングの先には、外からの視線を抑えた囲い庭。
室内とゆるやかにつながり、光や風、季節を日常に取り込みます。
キッチン・ダイニング・リビングがひと続きになったLDKは、平屋ならではのワンフロア設計。
家族の気配を感じながら、ひとつながりの空間で心地よく過ごせます。
窓から陽光が差し込み、ブラインドの影が室内に落ちる。風が、心地よく流れる。
穏やかな毎日が、ここからはじまります。
セキホームオリジナル快適冷暖システム「悠奏」搭載
セキホームの高気密・高断熱工法と、
基礎から家全体を包み込む外断熱工法をベースに、
断熱性能を内側からも高める「ダブル断熱工法」を採用。
( ※基礎は外断熱のみ )
その構造を活かして生まれた、床下空間を利用する冷暖房システムが「悠奏」です。
床下に暖かい空気・冷たい空気を巡らせ、各部屋の床下ファンからやさしく室内へ。
エアコンの風に頼りすぎず、足元から家全体を包み込むような快適さを実現します。
本体は収納内にすっきりと収まり、LDKの空間を邪魔しないのも特長。
見た目の美しさと、心地よさを両立した、
“住まいの質”を高めるセキホームオリジナルの冷暖房システムです。

外観イメージ

内観イメージ



間取り

<イチオシポイント>
- 自然光と木の質感が、日常を穏やかに包み込む「南向きのLDK」
- 外からの視線を抑えながら、光・風・季節を身近に感じられる「囲い庭」
- 自転車だってラクラク入る!たっぷりの収納と広々土間空間のある「玄関」
- 仕事や読書、趣味に使える「1.5帖のこもれる書斎」
- LDKを中心に、水回りや収納へつながる回遊動線で、家事・移動の負担を軽減
- ユーティリティ横のファミリークローゼット(WCL)で、【洗う→干す→しまう】まで最短完結
- 家族の入浴時間を気にせず、洗濯も洗面もできる「独立した脱衣室」
建物詳細
敷地面積 230.18㎡/69.57坪
延床面積 94.40㎡/28.56坪
物件詳細
駐車場2台完備/ダブル断熱工法/基礎断熱/高気密高断熱住宅/断熱等級6クリア(UA値0.46以下)/木造平屋建/構造集成材/地勢平坦/24時間換気システム/第一種換気システムPanasonic「エアテクト」/オール電化/整形地/リビングハイドア/ハウステック/アイランドキッチン/3口IHクッキングヒーター/深型食器洗浄乾燥機/マルチシンク/人工大理石ワークトップ/タッチレス水栓(浄水器内蔵)/ソフトスライド式引出収納/対面キッチン/カップボード/吊り戸棚/全自動おそうじトイレPanasonic「アラウーノ」Z160/エコキュートフルオート(S)/省エネ給湯器/システムオートバス/キラクリン浴槽/バス1坪/独立洗面化粧台/三面鏡/セキホームオリジナル快適冷暖システム「悠奏」搭載/制振ダンパー/ライン照明/ダウンライト/人感センサー付ライト/室内スライド物干し/WCL/玄関クローゼット/設備保証有/YKKAP APW330・331/高性能樹脂窓/全居室突き板フローリング/クッションフロア/アクセントクロス/ポケットキー/火災警報器/リモコンニッチ/書斎/囲い庭/回遊動線
立地
現場写真

建設予定地:2号地(2025年11月 撮影)
区画図
【魚津市本新モデル】建設予定地…2号地

販売価格
3,480万円(建物+外構+消費税+土地含)
周辺環境
| 所在地 | 魚津市本新町 |
| 道路 | 公道6m |
| 用途地区 | 第一種中高層住居専用地域 |
| 建蔽率 | 60% |
| 容積率 | 200% |
| 設備 | 電気:北陸電力 ガス:個別プロパン 上水道:公営水道 下水道:公共下水 |
| 負担金 |
水道負担金:200,000円 |
| 小学校 | 道下小学校 約850m |
| 中学校 | 東部中学校 約1,400m |
| 環 境 |
【幼稚園・保育園】 ほんごうこども園 約1,400m みちした保育園 約600m 【病院・クリニック】 桝崎クリニック 約550m いなば小児科医院 約230m 大城眼科医院 約900m 富山労災病院 約2,700m 【商業施設】 大阪屋ショップ魚津釈迦堂店 約1,300m サンプラザ 約600m 業務スーパー魚津店 約1,800m ウエルシア魚津上村木店 約1,300m DCM魚津店 約1,400m |
同じ分譲地の他区画もご案内しています
現在、セキホームでは、魚津市本新分譲地内にて建築条件付き宅地を複数ご案内しています。
間取りも外観も、家族の暮らしに合わせて一から描ける自由設計の住まいづくりが可能です。
ぜひ他の区画も見比べながら、理想の暮らしを思い描いてみてください。


