【土地情報】黒部市牧野の分譲地 残り2区画
黒部市牧野に分譲地全4区画が誕生!
「黒部駅」まで徒歩7分。
朝の通勤や子どもの通学も、ゆとりを持って送り出せる距離です。
車なら約3分で入善・黒部バイパスへアクセスできるので、通勤はもちろん、休日のお出かけやお買い物もスムーズ。
電車も車も使いやすい、家族みんなにうれしい立地です。
周辺には、スーパーマーケットやドラッグストア、医療施設が充実。
日々の買い物はもちろん、急な体調不良にもすぐ対応できる安心感があります。
静かな住宅街にありながら、生活利便性はしっかり確保。
もしもの時に備えた「便利さ」と暮らしの「落ち着き」が両立したこの街で、家族の時間を大切に育みます。
セキホームでは、残り2区画の土地をご用意しております!
立地

区画図

価格表
| 区画番号 | 地積(㎡) | 地積(坪) | 坪単価 | 金額 |
| 2号地 ※商談中 | 203.92 | 61.68 | 128,000 | 7,895,040 |
| 3号地 ※商談中 | 203.69 | 61.61 | 128,000 | 7,886,080 |
( 2026.04.07時点 )
2026年3月完成、分譲住宅「牧野モデル」もご案内しています
現在、セキホームでは、黒部市牧野分譲地内「4号地」にて分譲住宅をご案内中です。
間取りや設備、外観までこだわり抜いた一棟を、ぜひご覧ください。
参考間取り
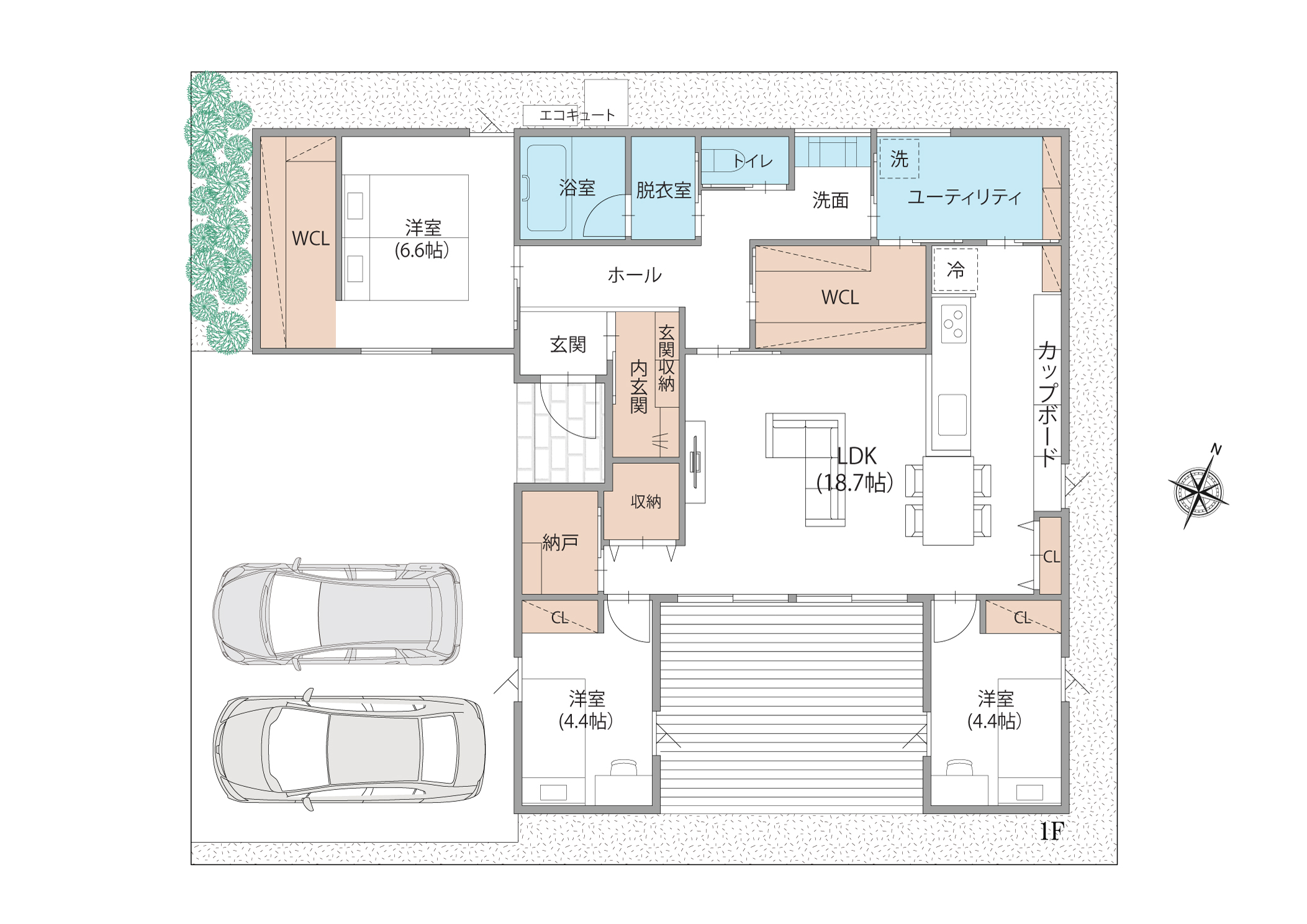
2号地:平屋建て(3LDK)

【物件情報】
延床面積:99.61㎡/30.97坪
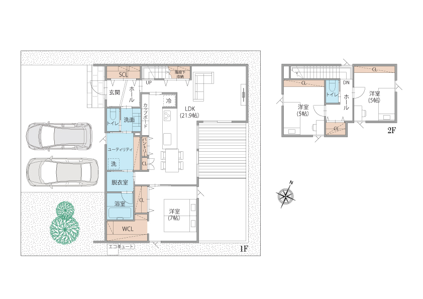
3号地:2階建て(3LDK)

【物件情報】
延床面積:108.68㎡/32.87坪
(1階:78.87㎡/23.86坪、2階:29.81㎡/9.01坪)
物件概要・周辺環境
| 所在地 | 黒部市牧野980-1 |
| 道路 | 6m(位置指定道路) |
| 用途地区 | 第一種中高層地域 |
| 建蔽率 | 60% |
| 容積率 | 200% |
| 設備 | 電気:北陸電力 ガス:個別プロパン 上水道:公営水道 下水道:公共下水道 |
| 負担金 | 下水道負担金:420円/㎡ 水道負担金:200,000円 |
| 小学校 | 桜井小学校 約1,200m |
| 中学校 | 明峰中学校 約2,900m |
| 環 境 |
【交通機関】 黒部駅 約550m 電鉄黒部駅 約1,000m 【幼稚園・保育園】 三島保育所 約650m さくら幼稚園 約2,100m 三日市保育所 約1,500m 【病院・クリニック】 黒部市民病院 約800m 岩田クリニック 約850m たまの整形外科クリニック 約350m 【商業施設】 メルシー 約750m アルビス黒部店 約1,200m ホームセンター ナフコ 黒部店 約1,300m クスリのアオキ黒部中央店 約350m コスモス牧野店 約600m 山谷書店 約350m 【公園・施設】 天神新児童公園 約600m 黒部市総合公園 約1,900m 道の駅 KOKOくろべ 約1,900m |
アクセス
お問い合わせ
少しでも興味を持たれたら、お気軽にお問い合わせください!
2026年3月完成、分譲住宅「牧野モデル」もご案内しています
現在、セキホームでは、黒部市牧野分譲地内「4号地」にて分譲住宅をご案内中です。
間取りや設備、外観までこだわり抜いた一棟を、ぜひご覧ください。

